- Woonoppervlakte
- Circa 129 m²
- Perceeloppervlakte
- Circa 2480 m²
- Bouwjaar
- Gebouwd in 1952
- Aantal kamers
- 4 kamers (3 slaapkamers)
Deze ruime woning beschikt over een gebruiksoppervlakte wonen van circa 190 m², een uitzonderlijk grote hoeveelheid externe bergruimte van ca. 310 m² en een bruto inhoud van circa 750 m³ . Dankzij de omvang en indeling is dit object uitermate geschikt voor wonen in combinatie met een bedrijf aan huis.
Indeling
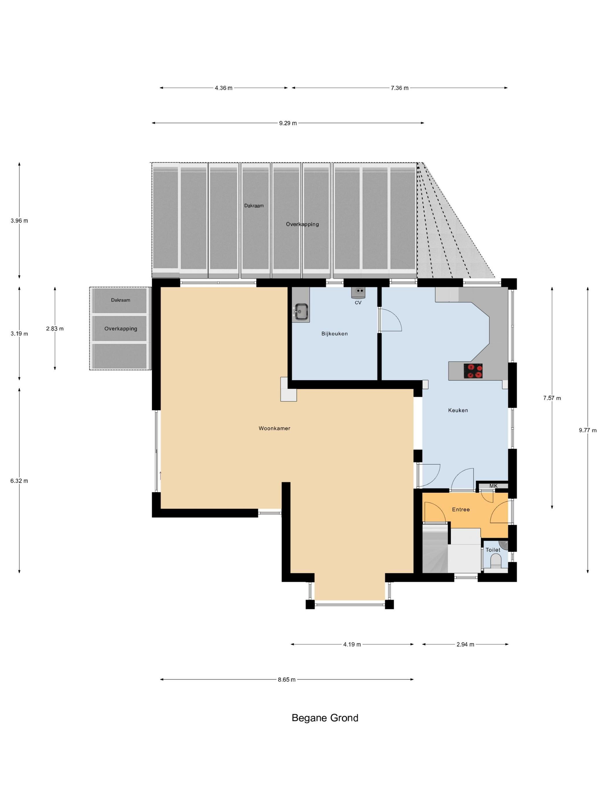
Begane grond
Via de entree bereikt u de hal met toiletruimte en meterkast. De ruime woonkamer is speels ingedeeld en geniet van veel lichtinval. De separate keuken staat in verbinding met de bijkeuken, waar tevens de cv-installatie is gesitueerd.
Eerste verdieping
De woning beschikt over 3 slaapkamers:
Slaapkamer 1: ca. 4.21 m x 3.04 m
Slaapkamer 2: ca. 2.97 m x 3.04 m
Slaapkamer 3: ca. 4.21 m x 3.23 m
Daarnaast is er een badkamer aanwezig met douche en toilet. Vanuit één van de slaapkamers is er toegang tot het balkon.
Vliering
Bereikbaar via een vlizotrap, geschikt als bergruimte.
Kelder
Praktische provisiekelder aanwezig.
Bijgebouw & mogelijkheden
Het bijgebouw beschikt over meerdere ruimtes, waaronder een kantoor en verblijfsruimte. Dit maakt het object ideaal voor ondernemers, zoals zzp’ers, opslag, praktijkruimte of kleinschalige bedrijfsactiviteiten aan huis.
Garage, carport en bergingen
Zeer ruime garage met meerdere compartimenten
Separate berging
Carport aanwezig
De aanwezige opstallen bieden uitzonderlijk veel opslag- en werkruimte.
Buitenruimte
Het perceel is royaal en biedt volop mogelijkheden voor tuinliefhebbers, opslag of bedrijfsmatig gebruik.
Ligging
Gelegen in Brunssum met goede bereikbaarheid en nabij voorzieningen, terwijl u geniet van rust en ruimte op eigen terrein.
Bijzonderheden
Vrijstaande woning
Ideaal voor bedrijf aan huis
3 slaapkamers
Groot perceel met diverse bijgebouwen
Veel opslag- en werkruimte
Meetrapport aanwezig (BBMI/NEN2580)
Disclaimer
Deze informatie is door Parkstad Makelaardij met de nodige zorgvuldigheid samengesteld. Ten aanzien van de juistheid van de verstrekte gegevens kan door ons echter geen aansprakelijkheid worden aanvaard, noch kan aan de vermelde gegevens enig recht worden ontleend.
Alle opgegeven maten, oppervlakten en inhoud zijn indicatief en gebaseerd op een meetrapport conform de BBMI (Branche Brede Meetinstructie), welke is gebaseerd op de NEN 2580. Verschillen in meetuitkomsten kunnen voorkomen door interpretatieverschillen, afrondingen of beperkingen van de meetmethode.
Koper heeft een eigen onderzoeksplicht naar alle zaken die voor hem van belang zijn. Wij adviseren u om een deskundige (bijvoorbeeld een aankoopmakelaar, bouwkundige of jurist) in te schakelen.
Deze aanbieding dient te worden gezien als een uitnodiging tot het doen van een bod. Verkoper behoudt zich uitdrukkelijk het recht van gunning voor.
Eventuele vermelde informatie met betrekking tot bestemmingsmogelijkheden, gebruik en vergunningen is indicatief; koper dient dit zelfstandig te verifiëren bij de gemeente.
Overdracht
- Vraagprijs
- € 475.000 k.k.
- Status
- Beschikbaar
- Aanvaarding
- Direct
Bouw
- Object type
- Eengezinswoning, vrijstaande woning
- Soort bouw
- Bestaande bouw
- Bouwjaar
- 1952
- Soort dak
- Zadeldak bedekt met pannen
Oppervlakte en inhoud
- Woonoppervlakte
- 129 m²
- Perceeloppervlakte
- 2480 m²
- Inhoud
- 750 m³
- Overige inpandige ruimte
- 24 m²
- Externe bergruimte
- 310 m²
- Gebouwgeb. buitenruimte
- 50 m²
Indeling
- Aantal kamers
- 4 kamers (3 slaapkamers)
- Aantal badkamers
- 1 badkamer en 1 apart toilet
- Voorzieningen
- Tv kabel, internet, opslagruimte
Energie
- Energielabel
- E
- Energielabel registratie
- 17-12-2020
- Verwarming
- CV-ketel
Buitenruimte
- Ligging
- Aan rustige weg, in woonwijk, landelijk gelegen
- Tuin
- Achtertuin
Energieverbruik in Brunssum
Energielabel deze woning
Energielabel E
Publicatie energielabel: 17-12-2020
Stroomverbruik per jaar
(Gemiddelde vrijstaande woning in Brunssum)
Gasverbruik per jaar
(Gemiddelde vrijstaande woning in Brunssum)
* Cijfers zijn afkomstig van het CBS en bedoeld als indicatie en kunnen verschillen voor deze woning
Indicatie hypotheeklasten
Eigen inleg:
Spaargeld / overwaarde
Rente:
Laagste 10-jaars rente
Laagste 10-jaars rente
2,78% - Centraal Beheer - NHG
3,04% - Centraal Beheer - 80%
Laagste 20-jaars rente
3,29% - Centraal Beheer - NHG
3,52% - Centraal Beheer - 80%
Laagste 30-jaars rente
3,41% - Centraal Beheer - NHG
3,7% - Argenta - 80%
Hypotheek:
Bruto maandlasten: € 0 p/m
Netto maandlasten: € 0 p/m
Hoe berekenen we dit?
Het rentepercentage is gebaseerd op de laagste 10 jaars vaste rente voor één hypotheekdeel. De vermelde rente (3.04% zonder NHG) is gecontroleerd op 12-04-2026. Deze berekening is gebaseerd op een annuïteitenhypotheek die volledig wordt afgelost, waarbij de maandlasten gedurende de gehele looptijd gelijk blijven. De werkelijke rente en netto maandlasten kunnen variëren, afhankelijk van uw persoonlijke situatie en de hypotheekverstrekker. Raadpleeg een financieel adviseur voor een nauwkeurige berekening en advies. Aan deze berekening kunnen geen rechten worden ontleend; het dient enkel als indicatie.
Documentatie
Kadastrale kaart
Leefomgeving
WOZ waarderapport
BAG uittreksel
Plattegronden PDF
Bezichtiging
Bod uitbrengen
Waardebepaling
Zoekopdracht
Alles downloaden
Zonnegrenzen bekijken
Inwoners in Brunssum
Cijfers voor postcodegebied 6446
- Totaal aantal inwoners
- 4785 inwoners
- Mannen
- 50%
- Vrouwen
- 50%
Inwoners in Brunssum
Cijfers voor postcodegebied 6446
- tot 15 jaar
- 15%
- 15 tot 25 jaar
- 10%
- 25 tot 35 jaar
- 23%
- 45 tot 65 jaar
- 31%
- 65 en ouder
- 21%
Huishoudens in Brunssum
Cijfers voor postcodegebied 6446
- Eenpersoons zonder kinderen
- 33%
- Meerpersoons zonder kinderen
- 31%
- Huishoudens zonder kinderen
- 64%
Huishoudens in Brunssum
Cijfers voor postcodegebied 6446
- Huishoudens met één kind
- 9%
- Huishoudens met meerdere kinderen
- 26%
- Huishoudens met kinderen
- 35%
Woningen in Brunssum
Cijfers voor postcodegebied 6446
- Woningen voor 1945
- 24%
- Woningen tussen 1945 en 1965
- 19%
- Woningen tussen 1965 en 1975
- 3%
- Woningen tussen 1975 en 1985
- 11%
- Woningen tussen 1985 en 1995
- 3%
Woningen in Brunssum
Cijfers voor postcodegebied 6446
- Woningen tussen 1995 en 2005
- 26%
- Woningen tussen 2005 en 2015
- 9%
- Woningen na 2015
- 4%
- Huurwoningen
- 40%
- Koopwoningen
- 60%
Overige in Brunssum
Cijfers voor postcodegebied 6446
- Gemiddelde WOZ waarde
- € 189.000,-
- Personen onder de 65 met uitkering
- 11%
Overige in Brunssum
Cijfers voor postcodegebied 6446
- Adressen per km²
- 1477
- Stedelijkheid (schaal 1 op 5)
- 60%
Korte feiten over Brunssum
Brunssum (Limburgs: Broenssem) is een stad en gemeente in het zuidoosten van Nederlands Limburg. De gemeente telt 27.773 inwoners (1 januari 2024, bron: CBS) en heeft een oppervlakte van 17,30 km². Brunssum ligt in de Oostelijke Mijnstreek en maakt deel uit van het bestuurlijke samenwerkingsverband Parkstad Limburg.
Parkstad Makelaardij
Indien u vragen heeft of u wilt een bezichtiging inplannen, dan kunt u gebruik maken van het formulier hiernaast. Er zal daarna op korte termijn contact met u worden opgenomen.
Contact opnemen
Parkstad Makelaardij
Twijfelt u of het nu het juiste moment is om uw woning in Parkstad te verkopen? Dat is begrijpelijk zeker als u nog geen nieuw huis heeft gevonden, is die stap niet eenvoudig.
Toch denkt u er misschien aan om net als buren, vrienden of collega’s een volgende stap te zetten. Misschien speelt ook mee dat de markt op dit moment gunstig is, en u juist nu een goede prijs voor uw woning kunt krijgen—een kans die zich de komende jaren mogelijk niet meer voordoet.
Laat daarom vrijblijvend en kosteloos uw woningwaarde bepalen door Parkstad Makelaardij. Zo weet u precies waar u aan toe bent.
Nieuwste reviews
-
Hd L
Het is dat ik een ster moet geven, maar deze huisjes melkers verdienen geen 1 ster, willen alles in je schoenen schuiven, ga nooit met deze...
-
Frans
Deze makelaar is echt een aanrader Said is al zijn afspraken keurig nagekomen ook de communicatie was prima hij heeft het appertement van mi...
-
Sally-Ann Bazlinton
Uitstekende service! Als u overweegt uw woning te verkopen, kan ik Said en Parkstad Makelaardji van harte aanbevelen. Ik heb nog nooit zo'...